Bad Dürrheim – Doppelhaushälfte mit Potenzial, solider Massivbau mit 2 Wohneinheiten, Balkon, Terrasse und 2 Garagen in ruhiger Sackgassenlage !
349.000,00 EUR Bad Dürrheim | Zweifamilienhaus | 193,00m² | 9 ZimmerWertstabile Doppelhaushälfte in ruhiger und dennoch stadtnaher Lage, die sowohl zur Eigennutzung als auch als Kapitalanlage geeignet ist.
In einer beliebten und gewachsenen Wohnlage von Bad Dürrheim befindet sich dieses solide Zweifamilienhaus. Das Gebäude steht in einer ruhigen Sackgasse, die ausschließlich von Anliegern genutzt wird. Die Umgebung ist geprägt von Ein-, Zwei- und Mehrfamilienhäusern, wodurch sich ein harmonisches Wohnumfeld ergibt. Die Nähe zur Innenstadt und zum Salinensee mit Kurpark unterstreicht die Attraktivität des Standorts.
Das Haus wurde 1966 in massiver Bauweise mit Hohlblocksteinen errichtet und überzeugt durch eine wertige Grundsubstanz. Das Satteldach ist in traditioneller Zimmermannsausführung erstellt, das Dachgeschoss wurde bereits Ende der 1960er-Jahre zu Wohnzwecken ausgebaut. Im Jahr 2012 erhielt das Gebäude einen Vollwärmeschutz mit 16 cm Dämmung. Die Fenster wurden um 1993 erneuert. Beheizt wird das Anwesen über eine Ölzentralheizung aus dem Jahr 1998. Die Elektrik entspricht noch dem Ursprungsbaujahr.
Das Haus ist voll unterkellert und bietet zusätzliche Abstell- und Nutzflächen. Auf dem 377 m² großen Grundstück stehen zwei Garagen sowie ein Stellplatz direkt am Haus zur Verfügung.
Die Erdgeschosswohnung verfügt über ca. 69 m² Wohnfläche mit drei Zimmern, Küche, Tageslichtbad und Terrasse. Sie befindet sich weitgehend im Originalzustand und ist bereits bezugsfrei.
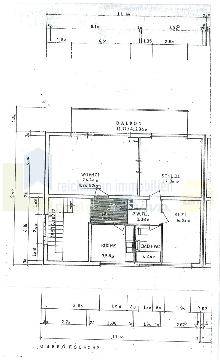
Die Ober- und Dachgeschosse bilden eine großzügige Maisonettewohnung mit rund 124 m² Wohnfläche. Klassisch ist im Obergeschoss der Wohnbereich mit Küche, Bad und Balkon angeordnet, während im Dachgeschoss die Schlafräume mit einem weiteren Bad zur Verfügung stehen. Diese Einheit wurde 2008 und 2013 modernisiert und ist derzeit vermietet. Die Freistellung ist zum 01.12.2025 vorgesehen.
Das Gebäude weist in Teilbereichen Renovierungsbedarf auf, bietet jedoch eine gute Basis dank der soliden Bauweise. Mit überschaubaren Maßnahmen lässt sich die Immobilie wieder auf einen zeitgemäßen Stand bringen.
Herzlich Willkommen in Bad Dürrheim !
Die Immobilie befindet sich in einer der gefragten Wohnlagen von Bad Dürrheim. Das Umfeld ist geprägt von Ein- und Mehrfamilienhäusern in gewachsenen Strukturen und überzeugt durch eine ruhige, anliegergeprägte Wohnatmosphäre. Trotz der angenehmen Zurückgezogenheit sind sowohl die Innenstadt als auch Einkaufsmöglichkeiten, Schulen und Kindergärten in wenigen Minuten erreichbar.
Besonders hervorzuheben ist die Nähe zum Salinensee und zum weitläufigen Kurpark, die mit ihren Freizeit- und Erholungsangeboten einen hohen Wohnwert schaffen. Spazier- und Radwege befinden sich in unmittelbarer Umgebung und laden zur aktiven Freizeitgestaltung ein. Auch die Anbindung an das regionale Straßennetz ist günstig, sodass die umliegenden Städte Villingen-Schwenningen, Donaueschingen oder die Autobahn A81 schnell erreicht werden können.
Insgesamt bietet die Lage eine attraktive Kombination aus ruhigem Wohnen, naturnaher Erholung und Stadtnähe.
* Beliebte Wohnlage in Bad Dürrheim, ruhige Sackgasse, stadtnah und nahe dem Salinensee
* Doppelhaushälfte, Baujahr 1966, massive Bauweise mit 30 cm Hohlblocksteinen
* Voll unterkellert, trockene Nutz- und Abstellflächen
* Erdgeschosswohnung ca. 69 m², 3 Zimmer, Tageslichtbad, Terrasse, bezugsfrei
* Maisonettewohnung über OG/DG ca. 124 m² mit Balkon, renoviert 2008 und 2013, frei ab 01.12.2025
* Fenster ca. 1993 erneuert
* Vollwärmeschutz (16 cm) aus 2012
* Ölzentralheizung Baujahr 1998
* Elektrik im Ursprungszustand
* Grundstück ca. 377 m²
* Zwei Garagen und ein zusätzlicher Stellplatz am Haus
* Solide Substanz, mit überschaubaren Modernisierungen zeitgemäß aufwertbar
* Geeignet zur Eigennutzung oder Kapitalanlage
| Angebots-ID: | A2449 |
| Verfügbar ab: | sofort oder nach Abs |
| Kaufpreis: | 349.000,00 EUR |
| Zimmer: | 9 |
| Wohnfläche: | 193,00 m² |
| Grundstücksfläche: | 377,00 m² |
| Nutzfläche: | 70,00 m² |
| Etagen: | 2 |
| Baujahr: | 1966 |
| Heizungsart: | Zentralheizung |
| Befeuerungsart: | Öl |
| Wert des Endenergiebedarfs: | 137,50 kWh/(m²*a) |
| Art des Energieausweises: | Bedarf |
| Energieeffizienzklasse: | E |
| Sonstige Angaben: | Sie benötigen eine Finanzierung oder möchten Ihre Konditionen vergleichen? Gerne sind wir Ihnen dabei behilflich! Alle Angaben wurden vom Eigentümer erteilt. Eine Haftung für deren Richtigkeit und Vollständigkeit kann deshalb nicht übernommen werden. Um Ihre Anfrage zu Ihrer Zufriedenheit bearbeiten zu können, senden Sie uns Ihre vollständige Anschrift und Telefonnummer. Mit Ihrer Objektanfrage erkennen Sie an, dass Sie im Erfolgsfall an die Firma Reichmann Immobilien eine Käufer-Maklerprovision in Höhe von 3,57 % inkl. 19% MwSt. entrichten. Die Provision errechnet sich aus dem beurkundeten Kaufpreis. Widerrufsbelehrung Sie können Ihre Vertragserklärung innerhalb von 14 Tagen ohne Angabe von Gründen in Textform (z. B. Brief, Fax, E-Mail) widerrufen. Die Frist beginnt nach Erhalt dieser Belehrung in Textform. Zur Wahrung der Widerrufsfrist genügt die rechtzeitige Absendung des Widerrufs. Der Widerruf ist zu richten an: reichmann immobilien e.K., Herdstraße 19, 78166 Donaueschingen, Telefax 0771/8326363, e-mail: info@immobilien-reichmann.de Ihr Widerrufsrecht erlischt vorzeitig, wenn der Vertrag von beiden Seiten auf Ihren ausdrücklichen Wunsch vollständig erfüllt ist, bevor Sie Ihr Widerrufsrecht ausgeübt haben. Widerrufsfolgen Wenn Sie diesen Vertrag widerrufen, haben wir Ihnen alle Zahlungen, die wir von Ihnen erhalten haben, unverzüglich und spätestens binnen vierzehn Tagen ab dem Tag zurückzuzahlen, an dem die Mitteilung über Ihren Widerruf dieses Vertrags bei uns eingegangen ist. Für diese Rückzahlung verwenden wir dasselbe Zahlungsmittel, das Sie bei der ursprünglichen Transaktion eingesetzt haben, es sei denn, mit Ihnen wurde ausdrücklich etwas anderes vereinbart; in keinem Fall werden Ihnen wegen dieser Rückzahlung Entgelte berechnet. Haben Sie verlangt, dass die Dienstleistungen während der Widerrufsfrist beginnen soll, so haben Sie uns einen angemessenen Betrag zu zahlen, der dem Anteil der bis zu dem Zeitpunkt, zu dem Sie uns von der Ausübung des Widerrufsrechts hinsichtlich dieses Vertrags unterrichten, bereits erbrachten Dienstleistungen im Vergleich zum Gesamtumfang der im Vertrag vorgesehenen Dienstleistungen entspricht. Ist der Nachweis der Gelegenheit zum Abschluss eines Vertrags oder für die Vermittlung eines Vertrags erbracht, so entspricht dies dem Gesamtumfang der Dienstleistung. Ihr reichmann immobilien e.K. |
| Käuferprovision: | 3,57% inkl. MwSt. |
| Anzahl Garagenstellplätze: | 2 |
| Stellplätze: | 2 |
| Balkone: | 1 |
| Terrassen: | 1 |
| Energieausweis gültig bis: | 25.09.2035 |
| Energieausweis-Jahrgang: | ab Mai 2014 |
| Energieausweis-Gebäudeart: | Wohngebäude |
Die genaue Adresse teilen wir Ihnen auf Anfrage gerne mit.
78073 Bad Dürrheim
Deutschland





















