Renditestarkes Mehrfamilienhaus mit hochwertig ausgestatteten Wohnungen, Balkonen, Wintergarten und hoher Nutzungsflexibilität in Donaueschingen
1.290.000,00 EUR Donaueschingen | Mehrfamilienhaus | 674,00m² | 16 ZimmerBei der angebotenen Liegenschaft handelt es sich um ein außergewöhnlich großzügiges und architektonisch durchdachtes Mehrfamilienhaus aus dem Baujahr 1989, das sich deutlich vom üblichen Angebot am Markt abhebt. Das Gebäude wurde über viele Jahre hinweg laufend renoviert und in wesentlichen Bereichen hochwertig saniert. Ein Renovierungsstau besteht nicht.
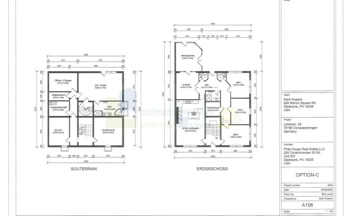
Das Haus umfasst mehrere sehr groß geschnittene Wohneinheiten, die jeweils als eigenständige Unikate wahrgenommen werden. Großzügige Grundrisse, mehrere Bäder und WCs pro Einheit, Balkone, Loggien, Terrassen, ein Wintergarten sowie Gartenflächen sorgen für einen Wohnstandard, der in dieser Form und Größe am Markt kaum zu finden ist. Ergänzt wird das Angebot durch fünf Tiefgaragenstellplätze direkt am Haus sowie zusätzliche Stellplätze.
Besonders hervorzuheben ist die hohe Flexibilität der Nutzung. Mehrere Einheiten lassen sich mit geringem Aufwand in kleinere Wohnungen aufteilen, da Elektrik und Sanitär bereits getrennt sind. Dadurch eignet sich das Objekt sowohl für klassische Vermietung, für teilgewerbliche Nutzung, für Wohnen und Arbeiten unter einem Dach als auch für Eigennutzer, die einen Teil selbst bewohnen und weitere Einheiten vermieten möchten. Auch Konzepte wie Mehrgenerationenwohnen oder betreutes Wohnen sind aufgrund der Grundrissstruktur und der vorhandenen Bäder problemlos denkbar.
Die Wohnung im Erdgeschoss und Untergeschoss wurde im Jahr 2024 vollständig und hochwertig umgebaut und saniert. Es entstanden moderne, anspruchsvolle Bäder sowie ein komplett erneuerter Wintergarten. Diese Einheit ist so konzipiert, dass sie bei Bedarf in zwei kleinere, barrierearme Wohnungen oder in eine Wohnlösung mit Pflegebezug aufgeteilt werden kann. Das Untergeschoss ist dank großzügiger Tageslichtfenster kein typisches Untergeschoss, sondern hell und wohnlich, mit eigener Terrasse und Bad.
Die Einheit im ersten Obergeschoss wurde bereits im Jahr 2001 umfassend und hochwertig umgebaut. Ursprünglich als Ausstellungs- und Verkaufsfläche genutzt, entstand hier eine großzügige Wohnung mit gehobener Ausstattung.
Die Maisonettewohnung im zweiten und dritten Obergeschoss verfügt ebenfalls über sehr großzügige Flächen und kann bei Bedarf in zwei kleinere Einheiten geteilt werden. Der Grundriss entspricht noch der ursprünglichen Konzeption aus der Zeit des Erwerbs, ist jedoch bereits hochwertig ausgebaut und modernisiert worden.
In mehreren Wohnungen sind Kaminöfen, mit eigenem Kamin-Abzug, vorhanden, was den Wohnwert zusätzlich unterstreicht. Das Treppenhaus präsentiert sich großzügig und gepflegt und vermittelt bereits beim Betreten des Hauses einen hochwertigen ersten Eindruck.
Auch energetisch zeigt sich die Liegenschaft in einem sehr guten Zustand. Die Gas-Zentralheizung wurde 2017 erneuert, die Fassade ebenfalls 2017 überarbeitet. Die Nebenkosten liegen bei lediglich rund 2,00 Euro pro Quadratmeter, davon entfällt nur etwa 1,00 Euro auf die Heizkosten. Der vorliegende Energieausweis weist die Effizienzklasse D aus – für ein Gebäude dieser Größe, Bauzeit und Lage ein sehr überzeugender Wert.
Die aktuellen Mieteinnahmen belaufen sich auf rund 5.900 Euro monatlich, entsprechend 70.800 Euro jährlich. Die Tiefgaragen- und Aussenstellplätze sind separat vermietet. Aufgrund der Wohnungsgrößen, der Ausstattung und der Lage bestehen weitere Entwicklungspotenziale.
Die Lage überzeugt durch ihre seltene Kombination aus Stadtnähe und ruhigem, gewachsenem Wohnumfeld. Einrichtungen des täglichen Bedarfs, Schulen, medizinische Versorgung sowie die Innenstadt sind schnell erreichbar, gleichzeitig bietet das Umfeld ein ruhiges, gepflegtes Wohngefühl. Eine Lage, bei der der oft bemühte Satz „stadtnah und dennoch ruhig“ tatsächlich zutrifft.
Insgesamt handelt es sich um ein äußerst seltenes Angebot: ein gepflegtes, hochwertig modernisiertes Mehrfamilienhaus mit außergewöhnlich großen Wohnungen, hoher Nutzungsflexibilität, niedrigen Nebenkosten und ohne Investitionsstau. Eine Immobilie, die sowohl für Kapitalanleger als auch für Eigennutzer mit Weitblick eine nachhaltige und zukunftsfähige Lösung darstellt.
Herzlich Willkommen in Donaueschingen !
Die Immobilie befindet sich in einer etablierten und gefragten Wohnlage von Donaueschingen, die sich durch ihre sehr guter Stadtnähe auszeichnet. Das Umfeld ist geprägt von gepflegter Wohnbebauung, gewachsenen Strukturen und einer insgesamt hohen Wohnqualität.
Die Donaueschinger Innenstadt mit ihren vielfältigen Einkaufs- und Versorgungsmöglichkeiten, Cafés, Ärzten, Schulen und gastronomischen Angeboten ist in wenigen Minuten erreichbar. Auch Kindergärten, weiterführende Schulen sowie sportliche und kulturelle Einrichtungen befinden sich im näheren Umfeld und sind gut angebunden.
Die Verkehrsanbindung ist sowohl für den Individualverkehr als auch für den öffentlichen Nahverkehr sehr gut. Über die nahegelegenen Hauptverkehrsachsen bestehen schnelle Verbindungen in Richtung Villingen-Schwenningen sowie in die umliegenden Gemeinden der Region Schwarzwald-Baar. Der Bahnhof Donaueschingen ist ebenfalls gut erreichbar und bietet regelmäßige Verbindungen in regionale und überregionale Richtungen.
Trotz der guten infrastrukturellen Anbindung zeichnet sich die Lage durch ein ruhiges Wohnumfeld aus. Grünflächen, Spazier- und Erholungsmöglichkeiten befinden sich in der näheren Umgebung und tragen zu einem ausgewogenen Verhältnis zwischen urbanem Leben und wohnlicher Zurückgezogenheit bei.
Insgesamt handelt es sich um eine Wohnlage, die sowohl bei Eigennutzern als auch bei Mietern nachhaltig gefragt ist und damit eine stabile Grundlage für langfristige Vermietbarkeit sowie flexible Nutzungskonzepte bietet.
– Außergewöhnlich großzügiges Mehrfamilienhaus mit sehr großen, hochwertig ausgestatteten Wohneinheiten
– Wohnungen mit wenig Aufwand teilbar in kleinere Einheiten
– Laufend renoviert und umfassend saniert, kein Renovierungs- oder Investitionsstau
– Baujahr 1989, wesentliche Modernisierungen 2001, 2017 und 2024
– Erdgeschoss- und Untergeschosswohnung 2024 vollständig und hochwertig saniert, neue Bäder und neuer Wintergarten
– Untergeschoss mit großem Tageslichtfenstern, eigener Terrasse und großem Bad – kein typisches Untergeschoss
– Wohnung im 1. Obergeschoss 2001 umfassend und hochwertig umgebaut inkl. großem Balkon.
– Maisonettewohnung im 2. und 3. Obergeschoss großzügig geschnitten mit Loggia
– Hohe Nutzungsflexibilität: Eigennutzung, Teilvermietung, Mehrgenerationenwohnen, Wohnen und Arbeiten kombinierbar
– Mehrere Balkone, Loggien, Terrassen, Wintergarten und Gartenflächen
– Teilweise Kaminöfen in den Wohnungen
– Mehrere Bäder und WCs je Wohneinheit
– Fünf Tiefgaragenstellplätze direkt am Haus sowie zusätzliche Stellplätze
– Gas-Zentralheizung 2017 erneuert, Fassade 2017 überarbeitet, Fenster laufend erneuert
– Sehr niedrige Nebenkosten von ca. 2,00 €/m², davon nur ca. 1,00 €/m² Heizkosten
– Energieeffizienzklasse D
– Gepflegtes, großzügiges Treppenhaus mit hochwertigem ersten Eindruck
– Attraktive Wohnlage mit Stadtnähe und ruhigem, gewachsenem Umfeld
– Aktuelle Jahresmieteinnahmen ca. 70.800€ mit weiterem Entwicklungspotenzial
.
| Angebots-ID: | A2520 |
| Verfügbar ab: | nach Absprache |
| Kaufpreis: | 1.290.000,00 EUR |
| Zimmer: | 16 |
| Wohnfläche: | 674,00 m² |
| Grundstücksfläche: | 548,00 m² |
| Nutzfläche: | 74,00 m² |
| Baujahr: | 1989 |
| Objektzustand: | gepflegt |
| Heizungsart: | Zentralheizung |
| Befeuerungsart: | Gas |
| Wert des Endenergiebedarfs: | 125,70 kWh/(m²*a) |
| Art des Energieausweises: | Verbrauch |
| Energieeffizienzklasse: | D |
| Sonstige Angaben: | Sie benötigen eine Finanzierung oder möchten Ihre Konditionen vergleichen? Gerne sind wir Ihnen dabei behilflich! Alle Angaben beruhen auf den Informationen des Eigentümers, eine Haftung für deren Richtigkeit und Vollständigkeit können wir deshalb nicht übernehmen. Mit Ihrer Objektanfrage erkennen Sie an, dass Sie im Erfolgsfall an die Firma Reichmann Immobilien eine Käufer-Maklerprovision in Höhe von 3,57 % inkl. 19 % MwSt. entrichten. Die Provision errechnet sich aus dem beurkundeten Kaufpreis. Widerrufsbelehrung: Sie können Ihre Vertragserklärung innerhalb von 14 Tagen ohne Angabe von Gründen in Textform (z. B. Brief, Fax, E-Mail) widerrufen. Die Frist beginnt nach Erhalt dieser Belehrung in Textform. Zur Wahrung der Widerrufsfrist genügt die rechtzeitige Absendung des Widerrufs. Der Widerruf ist zu richten an: reichmann immobilien e.K., Herdstraße 19, 78166 Donaueschingen, Telefax 0771/8326363, e-mail: info@immobilien-reichmann.de Ihr Widerrufsrecht erlischt vorzeitig, wenn der Vertrag von beiden Seiten auf Ihren ausdrücklichen Wunsch vollständig erfüllt ist, bevor Sie Ihr Widerrufsrecht ausgeübt haben. Widerrufsfolgen: Wenn Sie diesen Vertrag widerrufen, haben wir Ihnen alle Zahlungen, die wir von Ihnen erhalten haben, unverzüglich und spätestens binnen vierzehn Tagen ab dem Tag zurückzuzahlen, an dem die Mitteilung über Ihren Widerruf dieses Vertrags bei uns eingegangen ist. Für diese Rückzahlung verwenden wir dasselbe Zahlungsmittel, das Sie bei der ursprünglichen Transaktion eingesetzt haben, es sei denn, mit Ihnen wurde ausdrücklich etwas anderes vereinbart; in keinem Fall werden Ihnen wegen dieser Rückzahlung Entgelte berechnet. Haben Sie verlangt, dass die Dienstleistungen während der Widerrufsfrist beginnen soll, so haben Sie uns einen angemessenen Betrag zu zahlen, der dem Anteil der bis zu dem Zeitpunkt, zu dem Sie uns von der Ausübung des Widerrufsrechts hinsichtlich dieses Vertrags unterrichten, bereits erbrachten Dienstleistungen im Vergleich zum Gesamtumfang der im Vertrag vorgesehenen Dienstleistungen entspricht. Ist der Nachweis der Gelegenheit zum Abschluss eines Vertrags oder für die Vermittlung eines Vertrags erbracht, so entspricht dies dem Gesamtumfang der Dienstleistung. Ihr reichmann immobilien e.K. |
| Käuferprovision: | 3,57% inkl. MwSt. |
| Anzahl Garagenstellplätze: | 5 |
| Stellplätze: | 5 |
| Balkone: | 2 |
| Terrassen: | 3 |
| Energieausweis gültig bis: | 02.08.2030 |
| Energieausweis-Jahrgang: | ab Mai 2014 |
| Energieausweis-Gebäudeart: | Wohngebäude |
Die genaue Adresse teilen wir Ihnen auf Anfrage gerne mit.
78166 Donaueschingen
Deutschland


















