St. Georgen – 4,5-Zimmer-Eigentumswohnung mit Balkon, Tiefgarage und schönem Blick in den Wald – ruhiges und naturnahes Wohnen auf der Seebauernhöhe!
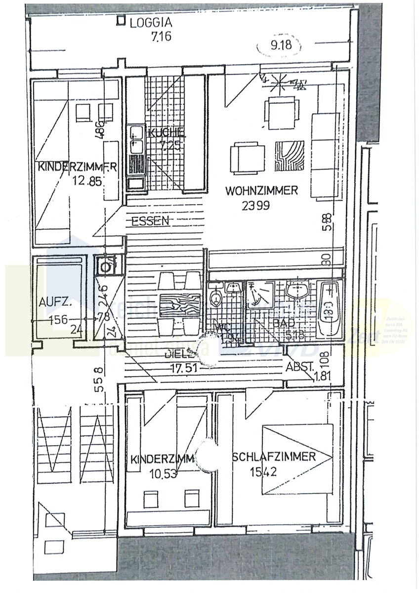
165.000,00 EUR Sankt Georgen im Schwarzwald | Etagenwohnung | 103,00m² | 4 ZimmerDie 4,5-Zimmer-Wohnung befindet sich im 2. Obergeschoss eines gepflegten Mehrfamilienhauses aus dem Jahr 1974 in ruhiger Lage von Sankt Georgen, direkt am Waldrand auf der Seebauernhöhe. Das Gebäude ist Teil einer gepflegten Wohnanlage mit Aufzug, Hausmeisterservice und Tiefgarage. Das Haus liegt am Ende einer Anwohnerstraße – dadurch besteht kaum Verkehr oder Lärm.
Die Wohnung bietet rund 103 m² Wohnfläche mit durchdachtem Grundriss und klassischer Aufteilung. Der großzügige Wohn- und Essbereich öffnet sich zum überdachten Balkon mit freiem Blick auf den angrenzenden Wald – ein idealer Platz zum Entspannen in ruhiger Umgebung. Drei weitere Zimmer unterschiedlicher Größe schaffen flexible Nutzungsmöglichkeiten, etwa als Schlafzimmer, Kinderzimmer oder Büro. Die Küche verfügt ebenfalls über eine Balkontür und direkten Zugang zum Balkon. Bad mit Wanne und Dusche sowie ein separates WC ergänzen das Raumangebot.
Die Wohnung befindet sich in einem gepflegten, überwiegend baujahrestypischen Zustand. Die Fenster wurden bereits gegen Kunststofffenster ausgetauscht. Die Wohnung steht leer. Eine Renovierung der Wohnung bietet sich daher an, um das Potential dieser solide gebauten Wohnung voll auszuschöpfen.
Die Heizung bzw. das Blockheizkraftwerk entspricht dem neuesten Stand der Technik, da es erst 2023 neu installiert wurde. Die Wohnung verfügt zudem über einen Glasfaseranschluss. Ein weiterer Vorteil bietet der mit einem Garagentor abschliessbare Tiefgaragenstellplatz
Zwei fußläufig erreichbare Kindergärten sowie eine gute Busanbindung befinden sich in unmittelbarer Nähe der Wohnung. Spazierwege und Natur beginnen direkt hinter dem Gebäude, das Stadtzentrum und die Geschäfte des täglichen Bedarfs sind in wenigen Minuten erreichbar.
Einbauküche, Tiefgaragenstellplatz und Keller sind bereits im Kaufpreis enthalten.
Herzlich willkommen in Sankt Georgen!
Die Wohnung befindet sich in einer bevorzugt ruhigen Lage von Sankt Georgen auf der Seebauernhöhe, einem gewachsenen Wohngebiet am Waldrand. Die Umgebung ist geprägt von gepflegten Mehrfamilienhäusern und Einfamilienhäusern mit großzügigen Grünflächen. Spazier- und Wanderwege beginnen direkt hinter dem Haus – ideal für alle, die naturnah wohnen und dennoch stadtnah bleiben möchten.
Zwei fußläufig erreichbare Kindergärten sowie eine gute Busanbindung befinden sich in unmittelbarer Nähe der Wohnung. Das Stadtzentrum von Sankt Georgen ist ebenfalls in wenigen Minuten erreichbar. Hier finden sich sämtliche Einrichtungen des täglichen Bedarfs – von Einkaufsmöglichkeiten über Schulen und Ärzte bis hin zu Gastronomie und Freizeitangeboten. Auch der Bahnhof mit Anschluss in Richtung Villingen-Schwenningen, Triberg und Freiburg liegt günstig.
Sankt Georgen selbst zählt zu den traditionsreichen Schwarzwaldstädten mit rund 13.000 Einwohnern. Die Höhenlage auf etwa 800 Metern verleiht dem Ort seinen besonderen Reiz – frische Luft, klare Strukturen und eine lebendige Gemeinschaft prägen das Stadtbild. Neben der guten Infrastruktur bietet Sankt Georgen zahlreiche Freizeit- und Sportmöglichkeiten, darunter Wanderwege, Loipen, Tennisplätze und ein Hallenbad.
Die Seebauernhöhe gehört zu den beliebten Wohnlagen der Stadt – ruhig, grün und dennoch verkehrsgünstig gelegen
.
* 4,5-Zimmer-Eigentumswohnung mit ca. 103 m² Wohnfläche
* Angenehme Lage auf der Seebauernhöhe in St. Georgen
* 2. Obergeschoss eines gepflegten Mehrfamilienhauses mit Aufzug
* Baujahr der Anlage 1974, solide Massivbauweise
* Überdachter Balkon mit schönem Blick in den Wald
* Großzügiger Wohn- und Essbereich mit Zugang zum Balkon
* Küche mit Zugang zum Balkon
* Drei weitere, gut nutzbare Zimmer mit flexibler Aufteilung
* Küche mit Fenster, separates WC, Bad mit Wanne und Dusche
* Fenster bereits gegen Kunststofffenster erneuert
* Beheizung über eine 2023 neu installierte Zentralheizung/Blockkraftheizung
* Gepflegter Allgemeinzustand
* Hausmeisterservice für Reinigung und Winterdienst vorhanden
* Tiefgaragenstellplatz mit Tor abschliessbar im Haus inklusive
* Glasfaseranschluss
* Ruhige Waldrandlage mit Spazierwegen ab Hauszugang
* Zwei fußläufig erreichbare Kindergärten
* Busanbindung in unmittelbarer Nähe der Wohnung.
* Ende einer Anwohnerstraße – dadurch besteht kaum Verkehr oder Lärm.
.
| Angebots-ID: | A2487 |
| Verfügbar ab: | sofort |
| Kaufpreis: | 165.000,00 EUR |
| Zimmer: | 4 |
| Schlafzimmer: | 3 |
| Badezimmer: | 1 |
| Wohnfläche: | 103,00 m² |
| Etagen: | 2 |
| Baujahr: | 1974 |
| Objektzustand: | gepflegt |
| Heizungsart: | Zentralheizung |
| Befeuerungsart: | Gas |
| Wert des Endenergiebedarfs: | 89,50 kWh/(m²*a) |
| Art des Energieausweises: | Verbrauch |
| Energieeffizienzklasse: | C |
| Sonstige Angaben: | Sie benötigen eine Finanzierung oder möchten Ihre Konditionen vergleichen? Gerne sind wir Ihnen dabei behilflich! Alle Angaben wurden vom Eigentümer erteilt. Eine Haftung für deren Richtigkeit und Vollständigkeit kann deshalb nicht übernommen werden. Um Ihre Anfrage zu Ihrer Zufriedenheit bearbeiten zu können, senden Sie uns Ihre vollständige Anschrift und Telefonnummer. Mit Ihrer Objektanfrage erkennen Sie an, dass Sie im Erfolgsfall an die Firma Reichmann Immobilien eine Käufer-Maklerprovision in Höhe von 3,57% inkl. 19% MwSt. entrichten (Bei einem Kaufpreis unter € 50.000,- fällt eine Mindestprovision in Höhe von € 1.785,- inkl. MwSt. an). Die Provision errechnet sich aus dem beurkundeten Kaufpreis. Widerrufsbelehrung Sie können Ihre Vertragserklärung innerhalb von 14 Tagen ohne Angabe von Gründen in Textform (z. B. Brief, Fax, E-Mail) widerrufen. Die Frist beginnt nach Erhalt dieser Belehrung in Textform. Zur Wahrung der Widerrufsfrist genügt die rechtzeitige Absendung des Widerrufs. Der Widerruf ist zu richten an: reichmann immobilien e.K., Herdstraße 19, 78166 Donaueschingen, Telefax 0771/8326363, e-mail: info@immobilien-reichmann.de - Ihr Widerrufsrecht erlischt vorzeitig, wenn der Vertrag von beiden Seiten auf Ihren ausdrücklichen Wunsch vollständig erfüllt ist, bevor Sie Ihr Widerrufsrecht ausgeübt haben. Widerrufsfolgen Wenn Sie diesen Vertrag widerrufen, haben wir Ihnen alle Zahlungen, die wir von Ihnen erhalten haben, unverzüglich und spätestens binnen vierzehn Tagen ab dem Tag zurückzuzahlen, an dem die Mitteilung über Ihren Widerruf dieses Vertrags bei uns eingegangen ist. Für diese Rückzahlung verwenden wir dasselbe Zahlungsmittel, das Sie bei der ursprünglichen Transaktion eingesetzt haben, es sei denn, mit Ihnen wurde ausdrücklich etwas anderes vereinbart; in keinem Fall werden Ihnen wegen dieser Rückzahlung Entgelte berechnet. Haben Sie verlangt, dass die Dienstleistungen während der Widerrufsfrist beginnen soll, so haben Sie uns einen angemessenen Betrag zu zahlen, der dem Anteil der bis zu dem Zeitpunkt, zu dem Sie uns von der Ausübung des Widerrufsrechts hinsichtlich dieses Vertrags unterrichten, bereits erbrachten Dienstleistungen im Vergleich zum Gesamtumfang der im Vertrag vorgesehenen Dienstleistungen entspricht. Ist der Nachweis der Gelegenheit zum Abschluss eines Vertrags oder für die Vermittlung eines Vertrags erbracht, so entspricht dies dem Gesamtumfang der Dienstleistung. Ihr reichmann immobilien e.K. |
| Käuferprovision: | 3,57% inkl. MwSt. |
| Anzahl TG-Stellplätze: | 1 |
| Stellplätze: | 1 |
| Separate WCs: | 1 |
| Balkone: | 1 |
| Energieausweis gültig bis: | 20.07.2028 |
| Energieausweis-Jahrgang: | ab Mai 2014 |
| Energieausweis-Gebäudeart: | Wohngebäude |
Die genaue Adresse teilen wir Ihnen auf Anfrage gerne mit.
78112 Sankt Georgen im Schwarzwald
Deutschland











