Architektur mit Substanz in VS-Schwenningen „am alten Krankenhaus“ Wohnhaus mit klarer und großzügiger Raumwirkung und vielen Nutzungsperspektiven !
460.000,00 EUR Villingen-Schwenningen | Einfamilienhaus | 258,00m² | 12 ZimmerDieses außergewöhnliche Wohnhaus in beliebter Lage von VS-Schwenningen, im Bereich Eschelen am alten Krankenhaus, wurde 1980 von einem Architekten geplant und überzeugt durch eine durchdachte und großzügige Bauweise. Solide errichtet, mit klaren Strukturen und einem gelungenem Grundriss.
Besonders hervorzuheben ist die hohe Flexibilität. Das Haus kann als großzügiges Einfamilienhaus genutzt werden, ebenso als Wohnhaus mit Einliegerwohnung oder als Objekt mit mehreren abgeschlossenen Einheiten und zusätzlichen separat nutzbaren Zimmern. Ob Mehrgenerationenwohnen, Wohnen und Arbeiten unter einem Dach, freiberufliche Nutzung für erwachsene Kinder, Studenten oder Gäste oder individuelle Nutzung – hier ist vieles möglich.
Im Untergeschoss ist eine Einliegerwohnung im Rohbau vorbereitet, mit separatem Zugang, Tageslichtfenstern und Terrasse. Der Ausbau kann direkt nach eigenen Vorstellungen erfolgen, ohne dass bestehende Strukturen zurück gebaut werden müssen. Ergänzt wird das Untergeschoss durch klassische Nutzflächen wie Waschküche, Abstellräume, Holzvorratsraum und Heizungsbereich. Die Gaszentralheizung ist funktionstüchtig, entspricht jedoch nicht mehr dem heutigen Standard und darf perspektivisch erneuert werden.
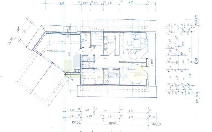
Das Erdgeschoss bietet eine abgeschlossene Wohneinheit mit großzügigem Wohn- und Essbereich inklusive offenem Kamin, Küche, Schlafzimmer und Badezimmer mit Tageslicht. Von hier besteht Zugang zur Terrasse und in den Garten. Ein zusätzliches großes Zimmer auf dieser Ebene kann flexibel genutzt oder der Wohnung zugeschlagen werden, beispielsweise als Büro, Praxisraum oder Gästezimmer.
Im Dachgeschoss befindet sich eine weitere Wohnung mit Küche, Bad, zwei Schlafzimmern, Wohnzimmer und Balkon. Zusätzlich gibt es auch hier ein separates Studiozimmer mit eigenem WC und Duschbad, das unabhängig genutzt werden kann.
Genau diese Struktur macht das Haus so spannend: Es bietet nicht nur Fläche, sondern vor allem Möglichkeiten.
Das Haus hat sich den typischen Charme der 1980er Jahre bewahrt und bietet eine solide Basis für individuelle Anpassungen. Es handelt sich nicht um einen standardisierten Neubau, sondern um ein durchdacht geplantes Haus mit Substanz und Entwicklungspotenzial.
Die Wohnfläche beträgt im ausgebauten Zustand rund 258 m². Hinzu kommen etwa 60 m² Nutzfläche im Untergeschoss sowie eine massive Doppelgarage.
Das Haus verbindet solides Bauen mit einem Grundrisskonzept, das auch heute noch überzeugt – praktisch, vielseitig und offen für unterschiedliche Lebensentwürfe.
Herzlich Willkommen in VS-Schwenningen!
Die Lage im Bereich Eschelen, am alten Krankenhaus in Schwenningen, zählt zu den gefragten Wohnlagen innerhalb des Stadtteils. Das Umfeld ist gewachsen, ruhig und von einer angenehmen Wohnbebauung geprägt. Gleichzeitig bestehen kurze Wege in die Innenstadt von Schwenningen, zu Einkaufsmöglichkeiten, Ärzten, Schulen, Kindergärten und den Einrichtungen des täglichen Bedarfs. Gerade die Verbindung aus gewachsener Wohnlage, guter Erreichbarkeit und ruhigerem Umfeld macht diesen Bereich seit jeher beliebt.
Wer Schwenningen kennt, weiß: Solche Lagen funktionieren nicht erst seit gestern, sondern seit Jahrzehnten.
* Architektenhaus Baujahr 1980 mit durchdachter und großzügiger Grundrissgestaltung
* Flexible Nutzung als Einfamilienhaus, Zweifamilienhaus oder Mehrfamilienhaus
* Insgesamt ca. 258 m² Wohnfläche zzgl. ca. 60 m² Nutzfläche im Untergeschoss
* Einliegerwohnung im UG bereits im Rohbau vorbereitet mit separatem Zugang und Terrasse
* Zwei vollwertige Wohneinheiten im Erd- und Dachgeschoss vorhanden
* Zusätzlich separate Zimmer auf jeder Ebene ideal für Büro, Praxis oder Gäste
* Großzügiger Wohn- und Essbereich im Erdgeschoss mit offenem Kamin
* Balkon im Dachgeschoss sowie Terrasse, Balkon und Garten im Erdgeschoss
* Massiv gebautes Haus mit solider Bausubstanz und klassischem 80er-Jahre-Charme
* Doppelgarage direkt am Haus
* Ruhige und gefragte Wohnlage im Bereich Eschelen am alten Krankenhaus in Schwenningen
* Hohe Alltagstauglichkeit und vielseitige Nutzungsmöglichkeiten für unterschiedliche Lebenskonzepte
| Angebots-ID: | A2528 |
| Verfügbar ab: | Nach Absprache |
| Kaufpreis: | 460.000,00 EUR |
| Zimmer: | 12 |
| Badezimmer: | 3 |
| Wohnfläche: | 258,00 m² |
| Grundstücksfläche: | 720,00 m² |
| Nutzfläche: | 60,00 m² |
| Baujahr: | 1980 |
| Objektzustand: | gepflegt |
| Heizungsart: | Zentralheizung, Fußbodenheizung |
| Befeuerungsart: | Gas |
| Wert des Endenergiebedarfs: | 211,40 kWh/(m²*a) |
| Art des Energieausweises: | Bedarf |
| Energieeffizienzklasse: | G |
| Sonstige Angaben: | Sie benötigen eine Finanzierung oder möchten Ihre Konditionen vergleichen? Gerne sind wir Ihnen dabei behilflich! Alle Angaben wurden vom Eigentümer erteilt. Eine Haftung für deren Richtigkeit und Vollständigkeit kann deshalb nicht übernommen werden. Um Ihre Anfrage zu Ihrer Zufriedenheit bearbeiten zu können, senden Sie uns Ihre vollständige Anschrift und Telefonnummer. Mit Ihrer Objektanfrage erkennen Sie an, dass Sie im Erfolgsfall an die Firma Reichmann Immobilien eine Käufer-Maklerprovision in Höhe von 3,57% inkl. 19% MwSt. entrichten. Die Provision errechnet sich aus dem beurkundeten Kaufpreis. Widerrufsbelehrung Sie können Ihre Vertragserklärung innerhalb von 14 Tagen ohne Angabe von Gründen in Textform (z. B. Brief, Fax, E-Mail) widerrufen. Die Frist beginnt nach Erhalt dieser Belehrung in Textform. Zur Wahrung der Widerrufsfrist genügt die rechtzeitige Absendung des Widerrufs. Der Widerruf ist zu richten an: reichmann immobilien e.K., Herdstraße 19, 78166 Donaueschingen, Telefax 0771/8326363, e-mail: info@immobilien-reichmann.de Ihr Widerrufsrecht erlischt vorzeitig, wenn der Vertrag von beiden Seiten auf Ihren ausdrücklichen Wunsch vollständig erfüllt ist, bevor Sie Ihr Widerrufsrecht ausgeübt haben. Widerrufsfolgen Wenn Sie diesen Vertrag widerrufen, haben wir Ihnen alle Zahlungen, die wir von Ihnen erhalten haben, unverzüglich und spätestens binnen vierzehn Tagen ab dem Tag zurückzuzahlen, an dem die Mitteilung über Ihren Widerruf dieses Vertrags bei uns eingegangen ist. Für diese Rückzahlung verwenden wir dasselbe Zahlungsmittel, das Sie bei der ursprünglichen Transaktion eingesetzt haben, es sei denn, mit Ihnen wurde ausdrücklich etwas anderes vereinbart; in keinem Fall werden Ihnen wegen dieser Rückzahlung Entgelte berechnet. Haben Sie verlangt, dass die Dienstleistungen während der Widerrufsfrist beginnen soll, so haben Sie uns einen angemessenen Betrag zu zahlen, der dem Anteil der bis zu dem Zeitpunkt, zu dem Sie uns von der Ausübung des Widerrufsrechts hinsichtlich dieses Vertrags unterrichten, bereits erbrachten Dienstleistungen im Vergleich zum Gesamtumfang der im Vertrag vorgesehenen Dienstleistungen entspricht. Ist der Nachweis der Gelegenheit zum Abschluss eines Vertrags oder für die Vermittlung eines Vertrags erbracht, so entspricht dies dem Gesamtumfang der Dienstleistung. Ihr reichmann immobilien e.K. |
| Käuferprovision: | 3,57 % inkl. MwSt. |
| Anzahl Garagenstellplätze: | 2 |
| Stellplätze: | 2 |
| Separate WCs: | 3 |
| Balkone: | 2 |
| Terrassen: | 2 |
| Energieausweis gültig bis: | 22.04.2036 |
| Energieausweis-Jahrgang: | ab Mai 2014 |
| Energieausweis-Gebäudeart: | Wohngebäude |
Die genaue Adresse teilen wir Ihnen auf Anfrage gerne mit.
78054 Villingen-Schwenningen
Deutschland

























