3-Zimmer-Wohnung in ruhiger Lage – stadtnah und doch im Grünen In Donaueschingen – Allmendshofen
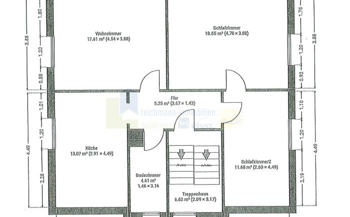
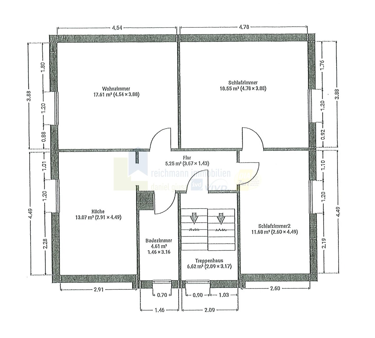
650,00 EUR Donaueschingen- Allmendshofen | Etagenwohnung | 60,00m² | 3 ZimmerDiese gemütliche 3-Zimmer-Wohnung mit ca. 60 m² befindet sich im Obergeschoss eines Zweifamilienhauses aus dem Jahr 1950. Durch den gut geschnittenen Grundriss wirken die Räume hell und freundlich – ideal zum Wohlfühlen.
Die Wohnung besteht aus zwei Schlafzimmern, einem Wohnzimmer, einer Küche ( bitte beachten Sie: die Einbauküche kann evtl. vom Vormieter abgekauft werden ), sowie einem Badezimmer mit Badewanne und WC.
Die Lage bietet das Beste aus zwei Welten: Sie wohnen ruhig im Grünen und sind trotzdem schnell in der Stadt. Perfekt für alle, die ländliche Ruhe und eine gute Anbindung verbinden möchten.
Die Wohnung ist ab 01.12.2025 bezugsfrei.
Haben wir Ihr Interesse geweckt? Dann freuen wir uns auf Ihre Anfrage und vereinbaren gerne einen Besichtigungstermin mit Ihnen!
Die Wohnung befindet sich im beliebten Donaueschinger Stadtteil Allmendshofen – eine ruhige und gepflegte Wohnlage, die seit jeher für hohe Lebensqualität steht.
Einkaufsmöglichkeiten, Schulen, Kindergärten sowie der Stadtkern von Donaueschingen sind in wenigen Minuten erreichbar. Die ausgezeichnete Anbindung an den öffentlichen Nahverkehr sowie die Nähe zur Natur machen diese Lage besonders attraktiv für Familien, Berufstätige und Ruhesuchende.
Für die ganz Kleinen ist ein Kindergarten im Stadtteil Allmendshofen vorhanden. Geschäfte des täglichen Bedarfs finden Sie in unmittelbarer Nähe ca. 1Km entfernt. Weitere Geschäfte sind in der Nachbarschaft im ca. 3 km entfernten Hüfingen oder dem ca. 2 km entfernten Donaueschingen anzutreffen.
Der Geburtsort der Donau hat seinen Gästen viel zu bieten. Neben ihren weltbekannten Sehenswürdigkeiten und attraktiven Freizeitmöglichkeiten besticht die Residenzstadt Donaueschingen durch ihre ideale Lage am Rande des Südschwarzwalds und ihrer Nähe zum Bodensee, der Schwäbischen Alb und der Schweiz. Zweifelsohne ist die Donauquelle im Fürstlichen Schlosspark das Ausflugsziel für Besucher aus nah und fern. Zu entdecken gibt es weitere Highlights wie das Fürstlich Fürstenbergische Schloss oder die Innenstadt mit farbenfrohen Jugendstilgebäuden. Empfehlenswert ist ebenfalls ein Besuch der vielfältigen Museen und der Fürstenberg Brauerei. Nach einem erlebnisreichen Tag laden gemütliche Restaurants und Cafés zum Verweilen ein. Sportlich aktive Gäste finden vom Badesee über eine 27-Loch-Golfanlage bis hin zum gut ausgebauten Rad- und Wanderwegenetz, mit Beginn des Donau-Radweges ein facettenreiches Freizeitangebot vor. Donaueschingen mit rund 21.300 Einwohnern ist Große Kreisstadt und Mittelzentrum im Schwarzwald-Baar-Kreis. Von den vor Ort ansässigen Betrieben, die einen Branchenmix aus den Bereichen Antriebselektronik, Apparate- und Werkzeugbau, Druckereigewerbe, Feinmechanik, Halbleitertechnik, Holzverarbeitung, Magnettechnik, Spritzgusstechnik, Schuhfabrikation, Textil bilden, gibt es etwa 22 größere mittelständische Betriebe, die alleine zusammen etwa 2.800 Mitarbeiter beschäftigen. Im Zentrum der Stadt wird das weltbekannte Fürstenberg Bier gebraut. Insgesamt finden in Donaueschingen mehr als 8.700 Menschen Arbeit in Betrieben und Organisationen.
Donaueschingen bietet: Gute Anbindung an überörtliche Verkehrswege wie B 27/33, B 31, Bundesautobahn A 81, Bahnanschluss-Allmendshofen (300 m von der Wohnung entfernt), Verkehrslandeplatz, schnelle Baugenehmigungen, kurze Verwaltungswege, moderate Grundstückspreise und Gewerbesteuerhebesätze, vielfältige Sport- und Freizeitmöglichkeiten. [Quelle: Donaueschingen)
* Zentralheizung
* Tageslichtbad mit Wanne und WC
* Waschkeller mit eigenem Anschluss
* Kellerraum
* überwiegend Laminatböden und Fliesen
* Einbauküche (kann evtl. vom Vormieter abgekauft werden)
* Garten kann mitbenutzt werden
| Angebots-ID: | A2485 |
| Verfügbar ab: | 01.12.2025 |
| Miete: | 650,00 EUR |
| Nebenkosten: | 200,00 EUR |
| Gesamtmiete: | 850,00 EUR |
| Kaution: | 1.300 € |
| Zimmer: | 3 |
| Schlafzimmer: | 2 |
| Badezimmer: | 1 |
| Wohnfläche: | 60,00 m² |
| Etage: | EG |
| Baujahr: | 1950 |
| Heizungsart: | Zentralheizung |
| Befeuerungsart: | Gas |
| Wert des Endenergiebedarfs: | 468,00 kWh/(m²*a) |
| Art des Energieausweises: | Bedarf |
| Energieeffizienzklasse: | H |
| Sonstige Angaben: | Alle Angaben wurden vom Eigentümer erteilt. Eine Haftung für deren Richtigkeit und Vollständigkeit kann deshalb nicht übernommen werden. Um Ihre Anfrage zu Ihrer Zufriedenheit bearbeiten zu können, senden Sie uns Ihre vollständige Anschrift und Telefonnummer. |
| Kaltmiete: | 650 € |
| Warmmiete: | 850 € |
| Heizkosten in Warmmiete enthalten: | ja |
| Gesamtkosten: | 850 € |
| Netto-Kaltmiete pro m²: | 10,83 € |
| Energieausweis gültig bis: | 04.05.2035 |
| Energieausweis-Jahrgang: | ab Mai 2014 |
| Energieausweis-Gebäudeart: | Wohngebäude |
Die genaue Adresse teilen wir Ihnen auf Anfrage gerne mit.
78166 Donaueschingen- Allmendshofen
Deutschland






